Pitt Street, Birmingham
  • Per month £1,000/pcm

Description

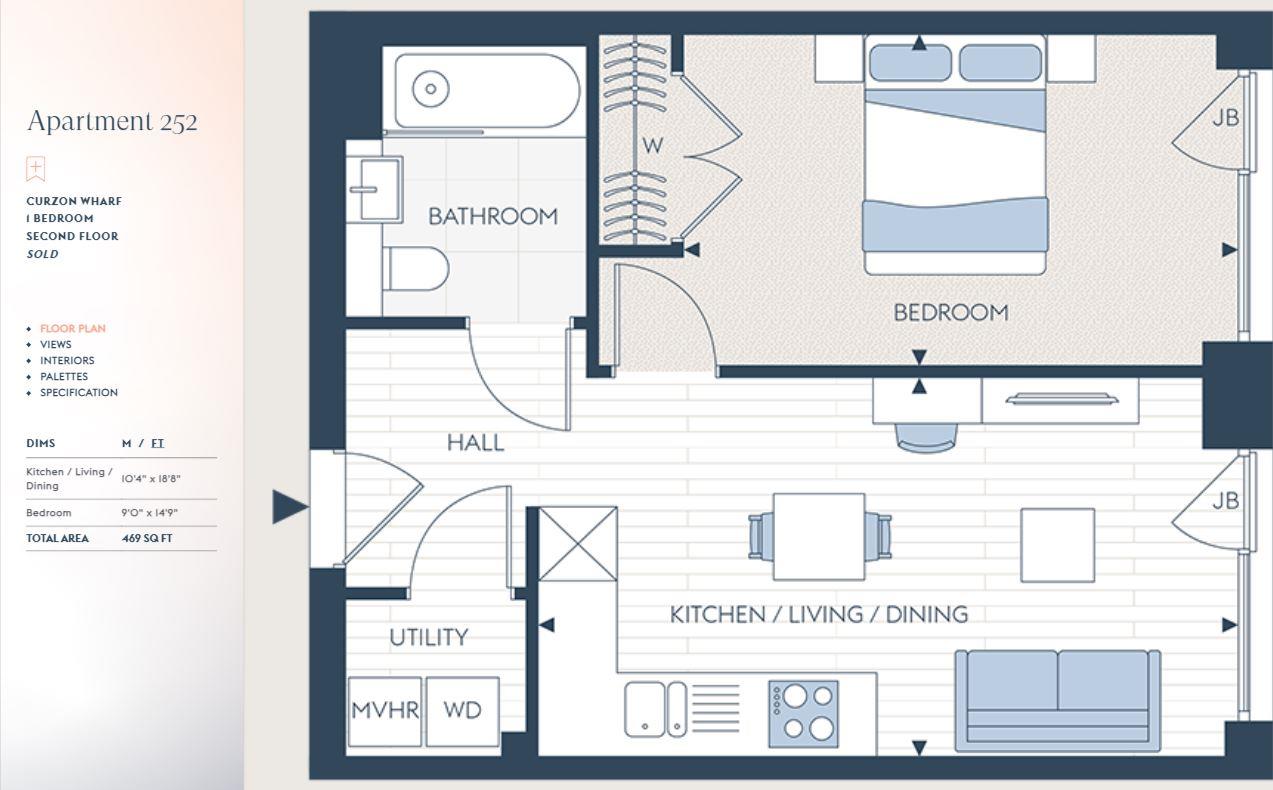
New to the market, this impressive and beautifully presented one-bedroom apartment is located on the second floor of the sought after and canal facing Glasswater Locks development

The apartment benefits from a spacious entrance hallway with ample storage leading into an open plan living room/dining area with contemporary wooden flooring with a Juliet balcony overlooking the communal garden area and a modern kitchen with integrated appliances. Off the living area is a large double bedroom with floor to ceiling fitted wardrobes, and a stylish bathroom with bath and shower.

Offered on an unfurnished basis, with neutral decoration throughout and secure video-entry access.

Glasswater Locks offers numerous onsite amenities including 24-hour concierge service, a residents-only gymnasium, private cinema and gaming room, library area, meeting rooms and several co-working stations.

Ideally positioned between Birmingham’s city centre and the Eastside district, located just a short walk from Curzon Street Station (HS2), Aston University and Birmingham New Street Station.

* Sorry, no parking included with this property *

Property Documents

Pitt Street, Birmingham
EE Rating
  • Address: 3 Pitt Street
  • Postcode: B4 7FJ

Details

Updated on April 29, 2026 at 4:04 am
  • Price Per month £1,000/pcm
  • Bedroom 1
  • Room 1
  • Bathroom 1

Floor Plans

Contact Information

Enquire About This Property

Similar Listings

Compare listings

Compare